Capannoni in vendita , Lecco, località Belledo

Lombardia Lecco Belledo Via Achille Grandi

Prezzo

€ 235.000

ribassato del 26 % - € 320.000

CAPANNONE con parcheggio esterno
Rif.: Rif. 225NC

  • Vendita
  • Contratto
  • 200 m²
  • Superficie
  • 1
  • Locali
  • 1
  • Bagni
  • 337,08 kWh/m3
  • Classe Energetica
  • Lombardia
  • Regione
  • Lecco
  • Provincia
  • Lecco
  • Comune
  • Belledo
  • Località

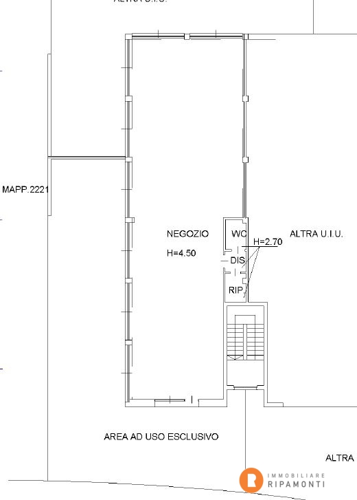
CAPANNONE a Lecco.
Affacciato su arteria di passaggio veicolare con collegamenti rapidi per le principali direttrici di traffico per Milano, Como, Bergamo e Milano.

COMPOSIZIONE:
Ingresso con vetrina fronte strada, locale open space da circa mq. 200, disimpegno, ripostiglio e bagno. Altezza a soffitto ml. 4,50.
Area esterna dedicata a parcheggio in uso esclusivo.

POSTI AUTO:
Cinque posti auto esterni.

CONDIZIONI:
Completamente ristrutturato.

RISCALDAMENTO E CLIMATIZZAZIONE:
Riscaldamento autonomo e climatizzazione con pompa di calore, da realizzare.
classe energetica G, indice di prestazione energetica 337,08. Rif. 225N

Per la tutela della Privacy, in alcuni casi su esplicita richiesta del venditore, gli indirizzi sono indicativi.
Per informazioni chiama subito Ufficio 0341.353.650.



  • Si
  • Bagno per Disabili

Caratteristiche

Condizioni: Ristrutturato
Riscaldamento: Autonomo
Tipo di Impianto: Ad aria
Alimentazione Riscaldamento: Metano
Condizionatore: Predisposizione impianto
Tipo Condizionatore: Freddo/Caldo
Parcheggio: Posto Auto
Posti Auto: 5
Passo Carrabile: Si
 
Immobile Libero: Si
Piano: Piano Terra - piani edificio 2
Immobile a Reddito: No
Accesso per Disabili: Si
Reception: Si
Anno di Costruzione: 1970
 
Tipo Costruzione: Signorile
Stato Costruzione: Ottimo
Altezza: 4,50 mt.
Reception: No
Superficie Uffici: 200 m²
 
Proprietà Recintata: No
Mensa: No
Spogliatoio: Si
Docce: No
Allarme: No
Videosorveglianza: No
 
Porta Blindata
Animali Domestici
Fermata Bus

Foto

CAPANNONE con parcheggio esterno - 1
CAPANNONE con parcheggio esterno - 2
CAPANNONE con parcheggio esterno - 3
CAPANNONE con parcheggio esterno - 4
CAPANNONE con parcheggio esterno - 5
CAPANNONE con parcheggio esterno - 6
CAPANNONE con parcheggio esterno - 7
CAPANNONE con parcheggio esterno - 8
CAPANNONE con parcheggio esterno - 9
CAPANNONE con parcheggio esterno - 10

Planimetrie

CAPANNONE con parcheggio esterno - 1

Mappa